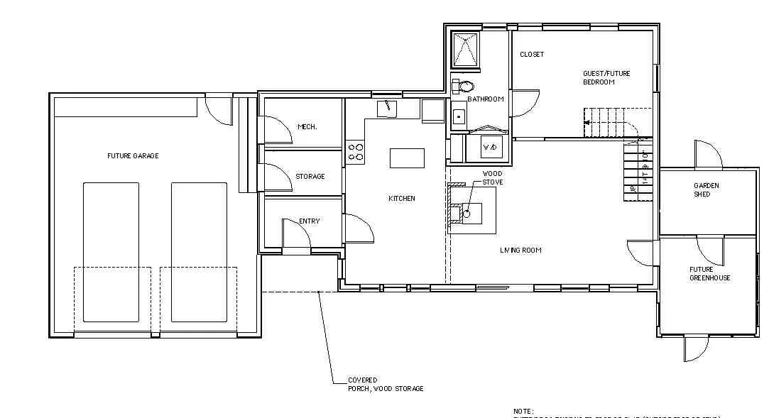
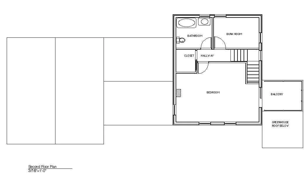
The concept behind Camp Modern is to create a house that looks like a modest Maine camp from the driveway side, and very modern and expansive from the facade facing the bay, taking full advantage of the water views. The house needs to be small (1300 s.f.), but big enough to accommodate a young family of four, non-toxic to the inhabitants and the environment, and express both modern and local vernacular aesthetics. The house will be built to Passivhaus standards. Construction began in 2019 and the living roof and decks will be completed Spring, 2021.
Designed for a sculptor who is ready to simplify her life, this house is carefully sited to respect the landscape, creating both cozy, contemplative space, and airy, cathedral-like space.
Construction is complete, and the owner is in the process of getting settled. Interior photos to follow!
Here is an unedited email I received a few days ago from the owner, which is testimony to the way I work:
“You come to mind very often as I continue to work on my fabulous hill house. This is a great house you and I collaborated on and you wrote the plans for so it could take form. It works just as I would have wished and dreamed;
the horizon line visable from sun and moon rise in the east all the way to winter sun set in west southwest. I have no idea where you are and what you are doing, but I hope you are thriving and happy.
If you're ever in Maine, I think you'd enjoy seeing us up on the hilll. Still painting the interior but that's because I'm so fussy and keep working until I get just what I want to express the conversations among the inside, the outside and the human (me) making gestures between them”
Sending love and enormous gratitude
Situated on a steep, narrow site, this 2700 sq. ft. house takes full advantage of southern exposure and unobstructed views of the Penobscot Bay.
Built to Passivhaus standards, total annual utilities average less than $100/month.
Recently returned from several years of living in rural Africa, Emily and Peter wanted a very simple, sustainable, super energy-efficient house, styled to reflect the traditional Maine vernacular.
Solar panels provide enough electricity to make this house net positive, generating more electricity than they use.
The hybrid post and beam construction, wood cabinetry, and red concrete floor work together to create a warm, welcoming home.
This passive house produces more electricity than it uses. A more formal arbor structure was designed to span the front facade at the white band, replacing the temporary cedar structure.
My client wished for a tiny house that would be a cross between a boat and a gypsy wagon. The 10'-6"x20'-0" floorplan accommodates kitchen, daybed, queen-size bed, bathroom with shower and storage.
Construction was completed in the fall of 2016.
Belfast is a lovely coastal town in mid-coast Maine. Like many of these towns, there are many charming old houses from the 1800's, Most have had additions built on over the centuries, along with attempts to make them less drafty and cold.
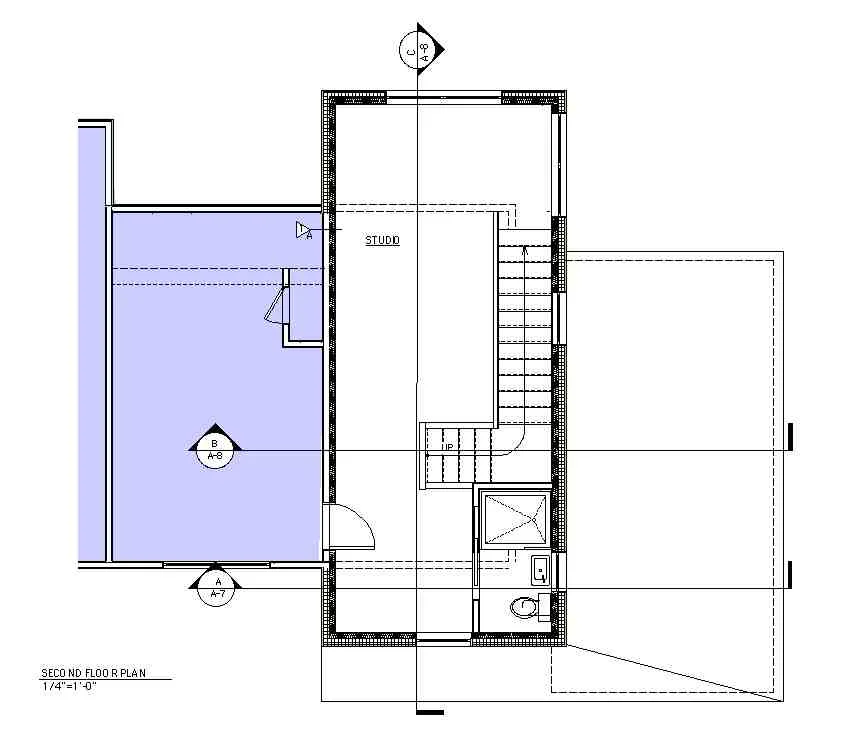
This project addresses the future needs of the owners by creating a flexible, super energy-efficient addition. A previous renovation included a universally accessible bedroom and bath, which is connected to the new living room/kitchen. The second floor will function as the owner's art studio with a bathroom that can be shared by the existing adjacent upstairs guest bedroom. Window placement takes advantage of southern exposure and maximizes views of the exquisite perennial gardens.
If the need arises, the addition can serve as a live-in caregiver apartment, or as a rental unit.
The roof is equipped with pv solar panels, with on-grid, off-grid and electric car-charging capabilities.
Existing house, before demolition of a previous garage addition.
This image shows the new Passivhaus addition and single car garage. The concrete driveway was replaced with pervious pavers, and the flowering crabapple tree was preserved.
This 1,400 s.f., 4-bedroom house on Bayview Street replaces a house that was demolished. The owners wanted a house in keeping with the aesthetics of the original houses on the street, while taking advantage of the uninterrupted view of the bay. Built to Passivhaus standards, the 3-story new house which is built into the steep hill, is super energy efficient, sunny and warm.
Originally the Holly 7 Firehouse built in the early 1800's. this historic brick building has been transformed into a birth center and family health center. The design goal was to bring the building up to the highest standards of energy efficiency while maintaining its unique old charm.
The entry was renovated for ADA accessibility, maintaining the original pilasters. Cornerboards were added to accommodate 8" of exterior insulation. Triple glaze windows replace the old, but not original, windows within the original openings. Exterior trim will be painted Spring 2017.
The eco-lodge at the Common Ground Center is a four-season lodge which opened in the fall of 2011. The eco-lodge provides flexible sleeping accommodations for 30, each sleeping room with private bath, a community room to serve fifty, kitchen, and laundry facilities. Domestic hot water and radiant floor heating is provided by roof-top passive solar panels. Heavy timbers, exterior and interior wood siding and community room maple floor were sustainably harvested from the site. Stones for the foundation and sitework were excavated from the building hole and from the creation of the 2-acre on-site pond. The living roof is planted with sedum, grasses and wildflowers. All rooms have natural ventilation and light and natural finishes. When camp is not running, the lodge is available for rental for retreats, conferences and weddings. Requests for bookings have been overwhelming.
Photos are available for purchase, either as digital images or prints on German archive-quality watercolor paper. Please contact me for pricing.
Maine driftwood
Maine Eggemoggin Reach
Maine seals
Maine Barred Islands
Maine Acadia
Maine winter
Sometimes, the projects with the most constraints are the most fun.
For this project, I was challenged to design the smallest footprint, with the least amount of material waste, full bath, a private bedroom and altar, and a separate sleeping space that could be used by visiting monks, and a full kitchen.
Milarepa asked me to help them develop a master plan. This first phase involved an addition to their existing farmhouse space. The first floor includes a gompa to allow for a large group to meditate together. The second floor will provide guest accommodations and a private space for a visiting rinpoche and attendants.
My work also included developing presentation material used for fundraising.